ARCHITEKTUR STÄDTEBAU DENKMALPFLEGE

Diakoniestation und Pfarrwohnung
Zeuthen

Neubau einer Diakoniestation und einer Pfarrwohnung

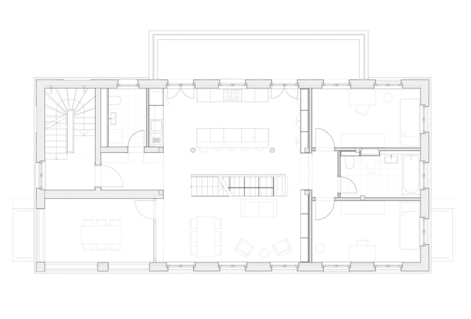
Gegenüber der Martin-Luther-Kirche im Zentrum Zeuthens entsteht ein zweigeschossiger Neubau mit einer Diakoniestation im Erdgeschoss und einer Pfarrwohnung im Ober- und Dachgeschoss.
Das dreiecksförmige Grundstück wird mit einem Baukörper belegt, der parallel zur Kirche steht und sich in seiner Kubatur und Materialität auf den benachbarten Kirchenbau bezieht.

Planungszeit
2023 - vsl. 2025
Leistungsphasen
1-9

Vorplanungsstand